ZAZS電動高壓角型調節閥閥芯型式:單座柱塞型閥芯
流量特性:等百分比特性和線性特性
材料:不銹鋼(1Cr18Ni9Ti、1Cr18Ni12Mo2Ti、17-4PH、9Cr18、316L)、不銹鋼堆焊司太萊合金、鈦和耐腐蝕合金等
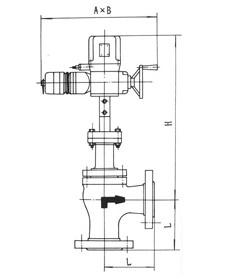
ZAZS電動角型調節閥,由DDZ型直行程電動執行機構和角型閥兩部分組成。以單項交流220V電源為動力,接受0~10或mA或4~20mA直流信號,自動地控制調節閥開度,達到對管道內流體的壓力、流量、溫度、液位等工藝參數的連續調節。
角形閥體積小、重量輕、閥芯采用頂導向結構,具有流路簡單、阻力小、易于沖洗的特點。
適用于要求直角連接,介質為高粘度、含懸浮物和顆粒狀介質的調節。
1、電動閥門系列閥體
型 式:角型單座鑄造球型閥
公稱通徑:20、32、40、50、65、80、100、125、150、200mm
公稱壓力:PN1.6、4.0、6.4MPa
法蘭標準:JB/T79.1-94~79.2-94等
材 料:鑄鋼(ZG230-450)、鑄不銹鋼(ZG1Cr18Ni9Ti、ZG1Cr18Ni12Mo2Ti)等
上 閥 蓋:標準型-17~+230℃、散熱型+230~+450℃、低溫型-60~-196℃、波紋管密封-40~+350℃
壓蓋型式:螺栓壓緊式
填 料:V型聚四氟乙烯填料、含浸聚四氟乙烯石棉填料、石墨填料
2、電動閥門系列閥內組件
閥芯型式:單座柱塞型閥芯
流量特性:等百分比特性和線性特性
材 料:不銹鋼(1Cr18Ni9Ti、1Cr18Ni12Mo2Ti、17-4PH、9Cr18、316L)、不銹鋼堆焊司太萊合金、鈦和耐腐蝕合金等
3、電動閥門系列執行機構
型 式:電動執行機構(如DKZ型執行機構)
電 源:220V或380V
輸入信號:4-20mA或0-10V·DC
輸出信號:4-20mA·DC
4、電動閥門系列閥作用型式
分電關式(B)或電開式(K)閥
5、 電動閥門系列輔助裝置
DFD型電動操作器、ZPE型伺服放大器
6、電動閥門系列結構圖說明

訂貨須知
1.產品型號與名稱 2.公稱通徑DN(mm 3.公稱壓力 4.流量特性要求 5.閥體材質及閥內件材料 6.介質種類和溫度范圍 7.閥前后壓力(壓差) 8.密封形式 9.配套附件










?公司郵箱登入
?
浙公網安備33032402002441號